Не упусти свой шанс! Последние акции от застройщиков  ▼

Продается 3-комнатная квартира, Шекспира ул., 1к1

17 800 000 Р

Бристоль КП (Московский поселение)

Шекспира ул.1к1

Дата публикации: 28 февраля 2026

Дата обновления: 4 марта 2026

Телефон: 
Показать телефон

+7 (499) 372-92-13

Агентство:  МИЭЛЬ

Название: ЖК "Бристоль"

От застройщика: 0 квартир в продаже

Этаж: 4 / 4

Общая: 57 м2

Жилая: 20,9 м2

Кухня: 23 м2

Комнаты: не указано

Балкон/лоджия: не указано

Лифт: есть лифт

Окна: окна во двор

Санузел: совмещенный

Мусоропровод: не указано

Состояние квартиры: дизайнерский ремонт

Тип дома: монолитно-кирпичный

Год постройки: 2023

Территория: огороженная

Парковка: не указано

Статус сделки: продажа

Сделка: прямая продажа

Собственность: не указано

Основание права собственности: не указано

Описание

Арт. 132095811
ВИДОВАЯ КВАРТИРА! НОВЫЙ РЕМОНТ!
Вы в поиске жилья в быстроразвивающемся Новомосковском округе? Вы его нашли!
Превосходная транспортная доступность! Расстояние до МКАД по скоростному Киевскому шоссе составляет 7 км (около 10 минут). Удобный выезд на Киевское и Боровское шоссе. Время в пути на общественном транспорте до станции метро "Внуково" и "Саларьево" около 10 минут.
Лучшее расположение в жилом комплексе!
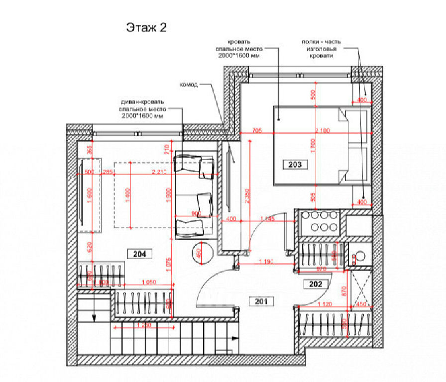
Предлагается к продаже великолепная двухуровневая трехкомнатная квартира. На первом этаже расположена просторная кухня-гостиная 23 м2 и совмещенный санузел, на втором этаже - две изолированные комнаты 11.3 и 9.6 м2 и отдельная гардеробная комната 3 м2 (возможно переоборудование в дополнительный санузел). Новый ремонт с использованием качественных материалов импортного производства и с соблюдением технологии строительства! Вариативная система освещения. Большие панорамные окна ориентированы на северо-восток. Стеклопакеты с шумо- и теплоизоляцией.
Все коммуникации централизованные. Индивидуальное газовое отопление. Очень выгодные коммунальные платежи!
Презентабельная входная группа.
Собственная огороженная территория. Большое количество бесплатных парковочных мест.
Жилой комплекс класса Комфорт ЖК "Бристоль" оформлен в английском стиле и состоит из четырехэтажных монолитно-кирпичных домов. Расположен в одном из самых живописных и экологически благоприятных мест Новой Москвы. В двух минутах ходьбы начинается обширная зона Ульяновского лесопарка и Боровского парка с каскадом прудов, детскими и спортивными площадками, скейт-парком и зонами для воркаута, а с юга - Валуевский лесопарк.
Благоустроенная территория. Насыщенная инфраструктура района и развитая инфраструктура комплекса обеспечивают комфортное проживание. Собственные два детских сада и лицей. В пешей доступности находится Торговый центр "Внуково Аутлет", а также продуктовые магазины и кафе.
Свободная продажа. Полная стоимость в договоре. Один взрослый собственник. Прописанных нет.
Уважаемые покупатели! Звоните и приходите! Мы полностью готовы к сделке!

Квартира на карте

ПанорамыКарта
Спецпредложения
Добавить объявление